12 Volt vs 24 Volt System
Do You Really Save Money?
Let us start by saying we recommend AGAINST using premade 12V LifePo batteries in series, with multiple BMS if one goes out you could have serious issues due to the higher voltage.
If you really need the higher voltage we recommend you buy batteries of the voltage you intend to use or look into building your own batteries.
Should you still decide to wire them in series do your research on the battery you intend to use and make sure they are rated for series connection.
Connecting Batteries in Parallel
When you connect in Parallel, your Voltage remains the same, but Amperage is additive, as illustrated in the drawing below.
Due to the BMS (Battery Management System) in each LifePo battery they need to be kept as close as possible in terms of SOC (State of Charge).
The drawings below show the correct way to connect batteries in parallel.
Click on pictures to see full size image
Whether you are connecting just 2 batteries...

Or more, check with the battery manufacturer as some are limited to the number of batteries that may connected as well as other factors.
Decisions
Deciding on a 12V or a 24V system can be confusing with all the online "information" available.
Some will tell you 24V will save you lots of money, but that is only true in a very large system, not what you will find in a typical CTC.
By large I mean a system that physically covers a large area, meaning long wire runs, or a system that you need to produce 5,000 Watts of power or more.
The thing to keep in mind, we will need the same amount of Watts regardless of the Voltage, so the Solar System and Battery System will remain the same for both systems.
What will change is the wiring between the battery bank and the load/distribution system.
The typical CTC/RV uses primarily 12V lighting, water pumps, tongue jack, vent fan, and other commonly installed equipment. This means you still need the 12V system.
In a 24V system batteries should be actual 24V batteries wired in parallel if multiple batteries are needed, this would really come down to cost of the individual batteries, so we have left this out of the pricing so as not to confuse the main issue.
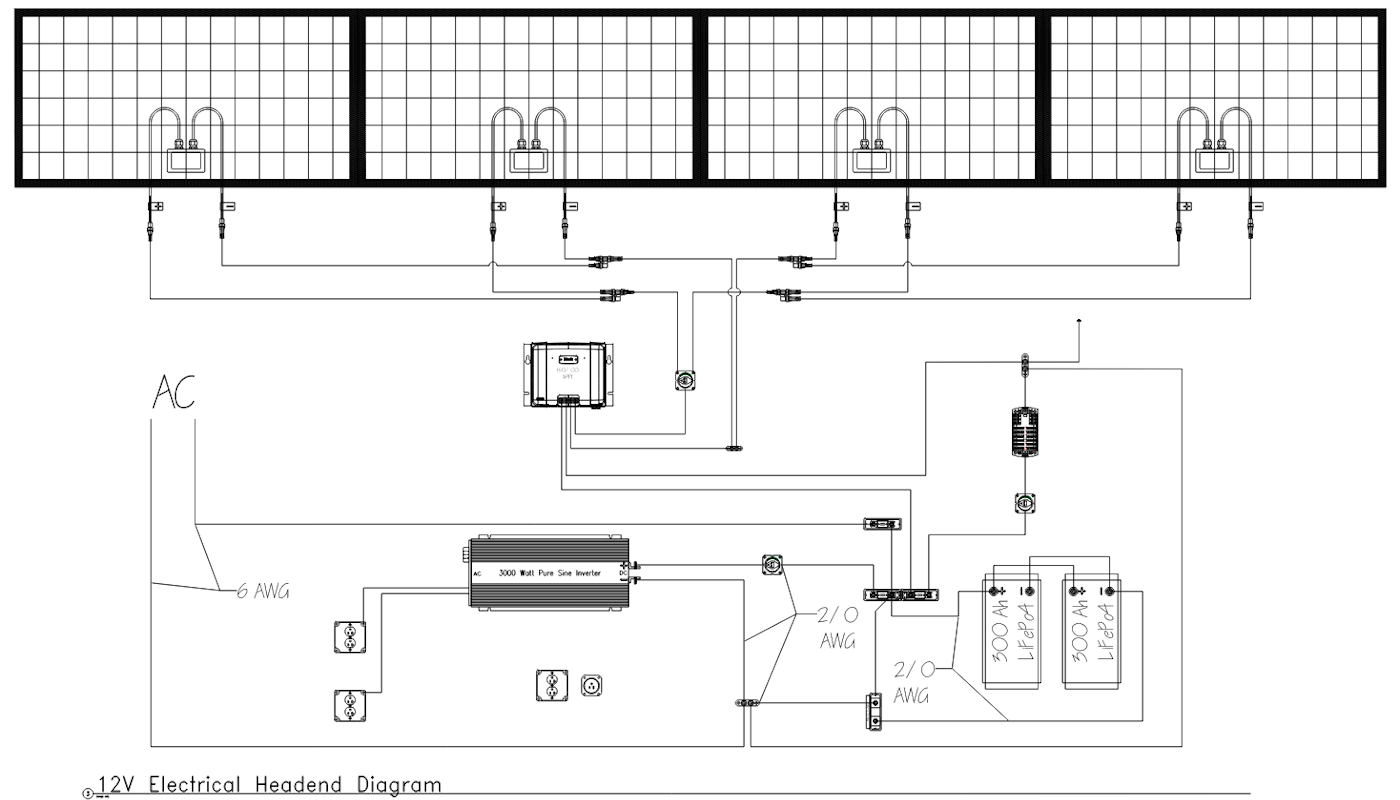
Let's take a look at a 12V/120V wiring diagram for a typical CTC with a solar system and a 3,000 Watt Inverter for 120V power.
Now let's take a look at a 24V/120V wiring diagram for a typical CTC with a solar system and a 3,000 Watt Inverter for 120V power.
What About Cost
In the graphics above you can see we changed very few wires, basically the wires to/from the battery, to the Inverter, and to the rooftop AC unit which can be either 12V or 24V.
Inverters in both cases are identical AIMS Power units, except for input voltage.
We prefer AIMS Power based on years of experience with them.
As you can see, in a small system like you would have in an RV you really do not save any money by going 24V, however what you do end up with is a system with additional electrical components and possible sources of failure.
We used pricing from Amazon for the wiring as they come in a kit that includes wire, lugs, and heat shrink.
The prices for the electronic equipment are list prices from the AIMS Power web site.